About this document

This document is available for all employees via the project network and is approved for use. This document is regularly updated and the latest version is available electronically. Once printed, the document should no longer be considered to be the latest version. It may be distributed externally, for example to the ECO Aviation Fuel Development Ltd. as a controlled document. As such, the front cover should be stamped “Controlled Copy” in red, a copy number added and distribution records maintained.

The project environmental coordinator is responsible for updating and maintaining this plan. The original hard-copy of the document should be signed to indicate approval and filed in the project filing system.

If you have any enquiry relating to this plan, please contact the project environmental coordinator in the first instance.

Revision Date Section/Description Authorized by
0 5.1.2006 Issued for Review BG
1 10.2.2006 Issued for Construction. Revised contents, section 4, section 5, Appendix A to E BG
2 3.04.06 Revised contents, section 4, section 5, table 5.1, table 5.3, Appendix A BG

Contents

Page

Purpose4
Scope 5
Description of the Works 5
Waste Management Policy6
Relevant Environmental Legislation and Guidelines 7
Ordinances and Regulations 7
Additional References and Guidelines9
Actions 12
Introduction12
Organization Structure for Waste Management12
Project Directory12
Duties and Responsibilities15
Identification of Potential Waste and Adverse Impacts 19
Estimated Quantities of Waste by Type22
Performance Targets 23
Waste-Mitigation Measures 24
Site Cleanliness30
Waste Management Plan Implementation 30
Conclusion34
Glossary of Terms 36
List of Tables
Table 5.1 Waste Management Project Directory 13
Table 5.2 Subcontractor Details 14
Table 5.3 Estimated Waste Generation 23
Table 5.4 Training Programme31
Table 5.5 Proposed Type of Waste Facilities 31
Table 5.6 Event Contingency Plan 33
List of Figures
Figure 2-1 General Location Plan 38
Figure 5-1 Environmental Management Organization Chart. 39
Figure 5-2 Location Plan for Waste Facilities and Stockpiling Areas 40
List of Appendices
Appendix A Environmental Control Plan ECP 5 – Waste and Chemical Management 41
Appendix B Waste Flow Table 61
Appendix C Waste Management Weekly Monitoring Checklist 63
Appendix D Work Processes or Activities Requiring Timber in Temporary Works 66
Appendix E Environmental Emergency Procedures 68

Section 1 – Purpose

The purpose of this Waste Management Plan includes:

identifying the quantity of waste generation from construction;
assessing environmental impacts that may occur;
proposing options for mitigating the impacts of waste disposal, and
setting out procedures for implementation of the plan.

Section 2 – Scope

The scope of this Waste Management Plan covers waste produced by Leighton Contractors (Asia) Limited during the construction of Permanent Aviation Fuel Facility.

2.1 Description of Works

The Airport Authority has awarded a franchise to ECO Aviation Fuel Development Ltd. to build and operate the Permanent Aviation Fuel Facility (PAFF) to provide fuel for Hong Kong International Airport at Chek Lap Kok.

The PAFF works to be executed shall include the design, construction, and commissioning, of the following major items:

Marine Receipt Facility jetty including foundations/piling, berthing and mooring dolphins, loading platforms, bollards, fenders, loading arms, pipework, and electrical and mechanical services and associated fire protection;

Tank farm including fuel tanks and ancillary pipework, foundations, earthworks, containment bunds, paving, drainage, fencing, mechanical and electrical services; and associated fire protection;

Under seabed twin piggable fuel pipelines from jetty to tank farm and from tank farm to the Existing Aviation Fuel System with connection to the existing submarine pipeline including cathodic protection, leak detection system and pig traps at the tank farm;

Modify seawalls and shore protection;

Utility services, including permanent and temporary storm water drainage systems, foul sewerage systems, water mains and ancillary water works, electrical supply, lighting systems, lighting masts, fire hydrant systems, fire-protection systems, pumping and filtering systems etc.;

Landscape works;

Buildings, including offices, transformer room, toilet, control room, workshop, pump room, switchboard room, laboratory and store.

Foundations, including piling as necessary.

Obtain all licences and approvals necessary for the construction and operation of the Facility

Section 3 – Waste Management Policy

This document sets out the waste management policy of Leighton Contractors (Asia) Limited to be implemented during activities associated with the design and construction of Permanent Aviation Fuel Facility in Tuen Mun, New Territories. The policy and Waste Management Plan is approved and issued with my authority.

It is our policy to provide sufficient resources and facilities for the implementation of effective waste management.

The objectives of implementing the Waste Management Plan are to:

i) reduce and minimize waste generated from the activities associated with the works while ensuring that the execution of project activities conforms with contractual and regulatory requirements;

ii) manage material and waste, including control and disposal, arising from the works for the project; and

iii) achieve the specific waste objectives and targets set by Leighton Contractors (Asia) Limited and reviewed from time to time (details of waste objectives and targets refer to clause 5.7).

The Waste Management Plan will be reviewed periodically by the project environmental review committee and revised if necessary to achieve continual improvement. The requirements of this plan will be communicated to all project staff who are required to diligently perform the duties that are assigned to them and to extend the understanding and acceptance of waste management policy to our subcontractors, suppliers and service providers.

As the project director, I require your active cooperation and participation to ensure that the Waste Management Plan becomes an integral part of the environmental management systems that will contribute to the overall success of the project.

Brian Gillon Project Director Date: 5th January 2006

Section 4 – Relevant Environmental Legislation and Guidelines

The Leighton Contractors (Asia) Limited shall comply with the following Hong Kong SAR ordinances and regulations, which cover, or have some bearing on, the handling, treatment and disposal of waste.

4.1 Ordinances and Regulations

4.1.1 Waste Disposal Ordinance (Cap 354)

This ordinance prohibits any person from using any land or premises for the disposal of waste unless one has been authorized by or has obtained a license from the waste-disposal authority, the Environmental Protection Department.

4.1.2 Waste Disposal (Chemical Waste) (General) Regulation, Enacted Under Waste Disposal Ordinance

This regulation has provisions to require any person who produces chemical waste to register with the Environmental Protection Department as well as to control the processing, storage, collection, transport and disposal of chemical waste. In additional, the regulation also provides for the licensing of waste collection, transport and disposal activities.

Chemical waste includes any scrap materials, or unwanted substances specified under Schedule 1 of this Regulation, if such a substance or chemical occurs in such a form, quantity or concentration that causes pollution or constitutes a danger to health or risk of pollution to the environment.

A person shall not produce, or cause to be produced, chemical wastes unless he is registered with EPD. Any person who contravenes this requirement commits an offence and is liable to a fine and/or imprisonment. Chemical wastes must be treated, utilising on-site plant licensed by EPD or have a licensed collector to transport the wastes to a licensed facility. For each consignment of wastes, the waste producer, collector and disposer of the wastes must sign all relevant parts of a computerised trip ticket. The system is designed to trace wastes from production to disposal.

This regulation also prescribes the storage facilities to be provided on site including labelling and warning sign. To minimise the risks of pollution and danger to human health or life, the waste producer is required to prepare and make available written emergency procedures for spillage, leakage or accidents arising from storage of chemical wastes, and provide employees with training for such procedures.

4.1.3 Land (Miscellaneous Provisions) Ordinance (Cap 28)

Inert construction waste may be taken to public dumps. The Land (Miscellaneous Provisions) Ordinance requires that a dumping licence be obtained by individuals,

Leighton Contractors (Asia) Limited Revision 2 03.04.2006

Paper copies are uncontrolled. The controlled version is on the Project Server

or companies, who deliver suitable construction waste to a public filling facility. The licence is issued by the Civil Engineering Department. When public dumping of such material is required, Leighton Contractors (Asia) Limited shall apply for the licence prior to disposal.

4.1.4 Public Health and Municipal Services Ordinance (Cap 132) - Public Cleansing and Prevention of Nuisances Regulation

This ordinance has provisions on the control of the discharge of hazardous material to sewers and for the control of littering. The ordinance prohibits placing or throwing any solid matter, mud or waste into public sewers or drains and also placing those substances in a location where they may fall into public sewers and drains. The ordinance also has provisions to require the owner or occupier of the land adjoining any street or place that is situated near a public sewer to exercise measures to prevent obstruction of sewers and drains caused by soil and waste.

4.1.5 Dumping at Sea Ordinance

The Dumping at Sea Ordinance requires that dumping permits are obtained by individuals or companies who deliver dredged/excavated marine sediment to designated disposal sites. The permits are issued by Environmental Protection Department under delegated powers from the Director of Environmental Protection. The permit shall be applied for as required.

4.1.6 Air Pollution Control (Open Burning) Regulation (CAP 311O) Enacted Under Air pollution Control Ordinance

This regulation prohibits or restricts the open burning in or at any place what so ever of any kind of material that may evolve air pollutants unless one has been authorised or obtained a permit from the Environmental Protection Department.

Open burning means the combustion of materials of any type outdoors without an enclosure, where the products of combustion are not directed through a chimney.

Open burning for the following purpose is prohibited: a) The disposal of construction waste b) The clearance of a site in preparation for construction works c) The disposal of tyres; and d) The salvage of metal.

4.1.7 Waste Disposal (Charges for Disposal of Construction Waste) Regulation (Cap 354N)

This regulation sets out the details of the construction waste disposal charging scheme and identifies the Designated Waste Disposal facility (DWDF) for disposal of construction waste at landfills, sorting facilities and public fill reception facilities.

The regulation sets the disposal charges at $125 per tonne at landfills, $100 per tonne at sorting facilities and $27 per tonne at public fill reception facilities in order to fully recover the capital and recurrent costs of the facilities according to

Leighton Contractors (Asia) Limited Revision 2 03.04.2006

Paper copies are uncontrolled. The controlled version is on the Project Server

the polluter pays principle.

The regulation requires the main contractor (of works with a value of $1 million or above) to make an application to the DEP within 21 days after of award of contract to establish a billing account. Once a billing account has been established the DEP will issue “chits” which will be used to record the disposal of waste at a designated waste disposal facility.

When delivering a load of waste to a designated waste disposal facility the waste hauler appointed by the account holder will be required to produce a valid “chit”.

4.1.8 Admission Ticket for Disposal of Special Waste at Landfills

Some waste will only be accepted at landfills with prior authorization from Environmental Protection Department under the Admission Ticket System. These waste include sludge/residue from sewage treatment plants, water works or industrial and commercial processes with a dry solid content of less than 30% but greater than 20% by weight for WENT & SENT, or greater than 15% for NENT, tyres and other wastes such as dewatered dredged material with a liquid content less than 70% by weight and contaminated material, etc. Admission Tickets are obtained by individuals or companies who deliver these special waste to designated landfill sites. The Admission Tickets are issued by Environmental Protection Department under delegated powers from the Director of Environmental Protection. The ticket shall be applied for as required.

4.2 Additional References and Guidelines

This Waste Management Plan has been prepared with reference to:

(a)
Waste Reduction Framework Plan, 1998 to 2007, Planning, Environment and Lands Bureau, Government Secretariat (5 November 1998);
(b)
2001 Review of the Waste Reduction Framework Plan, Waste Reduction Committee;
(c)
Site Practice for Waste Reduction in Construction Industry (2001), Environmental Protection Department;
(d)
Environmental Guidelines for Planning in Hong Kong (1990), Hong Kong Planning and Standards Guidelines, Hong Kong Government;
(e)
New Disposal Arrangements for Construction Waste (1992), Environmental Protection Department & Civil Engineering Department;
(f)
A Guide to Chemical Waste Control Scheme and A Guide to the Registration of Chemical Waste Producer, Environmental Protection

Leighton Contractors (Asia) Limited Revision 2 03.04.2006

Paper copies are uncontrolled. The controlled version is on the Project Server

Department;
(g) Code of Practice on the Packaging, Labelling and Storage of Chemical
Wastes (1992), Environmental Protection Department;
(h) A Guide to the Control on Import and Export of Waste (1999),
Environmental Protection Department;
(i) Works Bureau Technical Circular No. 10/92, Provision of Refuse
Containment Booms in Reclamation Contracts Involving Public Dumping,
Works Bureau;
(j) Works Branch Technical Circular 32/92, The Use of tropical Hard Wood
on Construction Sites, Works Branch;
(k) Works Bureau Technical Circular No. 2/93, Public Dumps, Works Bureau;
(l) Works Bureau Technical Circular No. 2/93B, Public Filling Facilities,
Works Bureau;
(m) Works Bureau Technical Circular No. 16/96, Wet Soil in Public Dumps,
Works Bureau;
(n) Works Bureau Technical Circular No. 4/98 and 4/98A, Use of Public Fill
in Reclamation and Earth Filling Projects, Works Bureau;
(o) Works Bureau Technical Circular No. 25/99, 25/99A and 25/99C,
Incorporation of Information on Construction and Demolition Material
Management in Public Works Sub-committee Papers, Works Bureau;
(p) Works Bureau Technical Circular No 12/00, Fill Management; Works
Bureau;
(q) Works Bureau Technical Circular No 19/01, Metallic Site Hoardings and
Signboards, Works Bureau;
(r) Works Bureau Technical Circular No 6/02 and 6/02A, Enhancement
Specification for Site Cleanliness and Tidiness, Works Bureau;
(s) Works Bureau Technical Circular No 12/2002, Specification Facilitating
the Use of Recycled Aggregates, Works Bureau;
(t) Environment, Transport and Works Bureau Technical Circular (Works)
Permanent Aviation Fuel Facility (H2104)
No 33/2002, Management of Construction and Demolition Material
including Rock, Environment, Transport and Works Bureau;
(u) Environment, Transport and Works Bureau Technical Circular (Works)
No 34/2002, Management of Dredged/Excavated Sediment, Environment,
Transport and Works Bureau; and
(v) Environment, Transport and Works Bureau Technical Circular (Works)
No 19/2005, Environmental Management on Construction Sites,
Environment, Transport and Works Bureau.
(w) Environment, Transport and Works Bureau Technical Circular (Works)
No 31/2004, Trip Ticket System for Disposal of Construction &
Demolition Materials, Environment, Transport and Works Bureau.
(x) Memo Ref. (15) in FM PF/GEN/18.01 Pt.4 dated 22 December 2004 on
“Enhancement of Trip Ticket System for Disposal of Construction and
Demolition Materials – Commencement of Implementation of Using Bar-
coded Disposal Delivery Form (DDF) on 15.1.2005”, Secretary, Public
Fill Committee, Civil Engineering & Development Department.
(y) Civil Engineering and Development Department Technical Circular No
05/2005, Management of Construction and Demolition Materials,
Environment, Civil Engineering and Development Department.
(z) Environmental Permit No. EP-139/2002/A, Environmental Protection
Department

Section 5 – Action

5.1 Introduction

Under the Leighton Contractors (Asia) Limited Environmental Management System, waste-management options are categorized in terms of preference from an environmental viewpoint as:

avoidance and minimization (ie, avoiding or not generating waste through changing or improving processes, practices and design);
re-use of material, thus avoiding disposal;
recovery and recycling, thus avoiding disposal (although some form of reprocessing may be required); and
treatment and disposal, according to relevant laws, guidelines and good practice.

That hierarchy is used to evaluate waste-management options, thus allowing maximum waste reduction and often reducing costs. For example, by reducing over-ordering of construction material, waste is avoided and costs are reduced both in terms of purchasing the material and waste disposal.

5.2 Organization Structure for Waste Management

The overall structure of the project organization is maintained separately and identified by the project director for the project. Figure 5-1 shows the arrangement for the organization and lines of communication for waste-management issues.

The project environmental coordinator shall have responsibility for coordinating waste-management activities and initiatives.

5.3 Project Directory

The project secretary maintains a separate project directory that lists details of all key contacts from each of the main organizations participating in the project, including those with responsibility for the implementation of the Waste Management Plan. The directory is made available to project staff by posting on notice boards and/or via the project network (Leighton Asia Document Management System) or similar. The part of the directory relevant to waste management shall be included in Table 5.1 and 5.2 (including subcontractors) and shall include as necessary, names and telephone numbers of work relating to the Waste Management Plan.

Page 13 of 73

H2104-WMP Waste Management Plan: Permanent Aviation Fuel Facility (H2104)

Table 5.1 Waste Management Project Directory

Name Position Organization Telephone Facsimile E-mail
Brain Gillon Project director Leighton Contractors (Asia) Limited 2403 0900 2404 0081 brian.gillon@leightonas ia.com
David Holden Project Environmental Coordinator Leighton Contractors (Asia) Limited 2403 0978 2404 0081 david.holden@leightona sia.com
Lewis Cheng Safety Manager Leighton Contractors (Asia) Limited 2403 0921 2404 0081 lewis.cheng@leightonas ia.com
Gabriel Ngai Assistant Safety Officer Leighton Contractors (Asia) Limited 2403 0922 2404 0081 gabriel.ngai@leightonas ia.com
S K Tsang Area Manager Leighton 2403 0912 2404 0081 sk.tsang@leightonasia.c
Contractors om
(Asia) Limited
Rex Chow Area Manager Leighton 2403 0909 2404 0081 rex.chow@leightonasis.
Contractors com
(Asia) Limited
Dan Lam Area Manager Leighton 2403 0908 2404 0081 dan.lam@leightonasia.c
Contractors om
(Asia) Limited
Tony Hoffman Superintendent Leighton Contractors (Asia) Limited 2404 8900 2404 0081 tony.hoffman@leighton asia.com
Eric Luk Sub Agent Leighton 2403 0992 2404 0081 eric.luk@leightonasia.c
Contractors om
(Asia) Limited
Colin Ho Sub Agent Leighton 2403 0983 2404 0081 colin.ho@leightonasia.c
Contractors om
(Asia) Limited
Michael Eskridge Sub Agent Leighton Contractors (Asia) Limited 2403 0982 2404 0081 michael.eskridge@leigh tonasia.com
Eric So Senior Engineer Leighton 2404 8900 2404 0081 eric.so@leightonasia.co
Contractors m
(Asia) Limited
Mole Tam Engineer Leighton 2403 0987 2404 0081 mole.tam@leightonasia.
Contractors com
(Asia) Limited
S L Wu Senior Engineer Leighton 2403 0989 2404 0081 sl.wu@leightonasia.com
Contractors
(Asia) Limited
Edmond Chung Engineer Leighton Contractors (Asia) Limited 2403 0987 2404 0081 edmond.chung@leighto nasia.com

Page 14 of 73

H2104-WMP Waste Management Plan: Permanent Aviation Fuel Facility (H2104)

Name Position Organization Telephone Facsimile E-mail
Thomas Wong Senior Engineer Leighton Contractors (Asia) Limited 2403 0991 2404 0081 thomas.wong@leighton asia.com
Timothy Tse Engineer Leighton 2403 0990 2404 0081 timothy.tse@leightonasi
Contractors a.com
(Asia) Limited
Billy Chan Supervisor Leighton 2403 0937 2404 0081
Contractors
(Asia) Limited
Keith Chan Supervisor Leighton 2403 0938 2404 0081
Contractors
(Asia) Limited
C L Yeung Foreman Leighton 2403 0929 2404 0081
Contractors
(Asia) Limited
Simon Bennett Administration Manager Leighton Contractors (Asia) Limited 2403 0901 2404 0081 simon.bennett@leighton asia.com
Jason Yu Quantity Surveyor Leighton 2403 0901 2404 0081 jason.yu@leightonasia.c
Contractors om
(Asia) Limited

Table 5.2 Subcontractor Details

Organization Position Name Telephone Facsimile E-mail
Hong Kong River Project Yu Ming 6099 0501 3150 8332 yuming007@vip.163.c
Eng. Co., Ltd. Manager om
Wing Tat Civil Site Agent Simon Chan 9343 8992 2637 2661
Construction Eng.
Ltd.
Prosperous Construction Ltd. Project Manager Joe Fai 9093 3966 2398 7284
Union Project Raymond 2459 6199 2452 0988 howaon@i-cable.com
Construction Limit Manager W.O. Ho

Project Organization Structure

5.4 Duties and Responsibilities

The primary responsibilities of the project director and project environmental coordinator with respect to the Waste Management Plan and the general responsibilities of project staff are described below.

5.4.1 Project Director

The project director shall:

be responsible for overall project management and shall have the day-to-day authority and responsibility for time, cost, safety, environmental and quality management;
be responsible for the provision of sufficient resources and facilities for the implementation of the Waste Management Plan;
actively support the waste-management policy;
approve environmental reports for issue;
approve the Waste Management Plan and associated documents for issue, and
approve the waste-management objectives and targets.

Leighton Contractors (Asia) Limited Revision 2 03.04.2006

Paper copies are uncontrolled. The controlled version is on the Project Server

5.4.2 Project Environmental Coordinator

The main duties of the project environmental coordinator are:

responsibilities:
- initiating and coordinating the initial planning and documentation of the Environmental Management Plan and Waste Management Plan, and maintaining and updating those plans at least at quarterly intervals during the construction of the project;
-
monitoring the environmental system on a day-to-day basis to make sure that the requirements of the Environmental Management Plan and Waste Management Plan are operational and effective;
-
monitoring environmental performance;
- updating the waste flow tables and summary table for the use of timber in temporary works; - collating environmental performance data, assessing performance against environmental objectives and targets and periodic reporting to the environmental-system manager located at the head office, and - provide assistance and guidance to staff, labour, subcontractors and suppliers in the implementation of the Waste Management Plan;
authority:
- the project environmental coordinator has the specific authority to implement the approved Environmental Management Plan and Waste Management Plan, and
accountability:

- the project environmental coordinator is directly accountable to the Project Director for the implementation and maintenance of the Environmental Management Plan and Waste Management Plan, and for overseeing the monitoring of environmental performance.

5.4.3 Area Managers

The Area Manger has the following duties in relation to waste management control:

(a)
Assist the Project Director in implementing the WMP;
(b)
Monitor and control the works including those of subcontractors to ensure compliance of WMP;
(c)
Report to the Project Director regarding non-compliance of any waste management issues;
(d)
Ensure the remedial actions or mitigation measures are carried out as planned; and
(e)
Supervise and arrange the maintenance of waste management facilities.

5.4.4 Sub Agents / Engineers / Site Supervisors / Foremen

The waste-management responsibilities of the Sub Agents / Engineers / Site

Leighton Contractors (Asia) Limited Revision 2 03.04.2006

Paper copies are uncontrolled. The controlled version is on the Project Server

Supervisors, Foremen are:

identify and investigate methods for waste minimization and waste management during planning;
provide information on waste production and resource use to the project environmental coordinator for compilation of reports;
make sure that requirements for waste management are identified and included in method statements;
make sure that during the construction phase activities comply with the requirements of the Waste Management Plan;
monitor the performance of the Waste Management Plan during construction;
make sure that subcontractors and suppliers under their control are made aware of, and comply with, the requirements of the Waste Management Plan, and

organize labour, material and equipment to undertake the actions required in the Waste Management Plan.

Other responsibilities relating to the monitoring and measurement of environmental performance and the control and mitigation of environmental impacts are given in the respective Environmental Control Plans in Appendix A and associated checklists that form part of the Waste Management Plan.

5.4.5 Subcontractors

Each subcontractor’s management shall be responsible for making sure that their site personnel are made aware of the environmental mitigation measures required by the Waste Management Plan and that those requirements are implemented to the satisfaction of Leighton Contractors (Asia) Limited. Each subcontractor shall report to the Leighton Contractors (Asia) Limited project director and shall cooperate fully in addressing all environmental matters.

On-site supervisor of each subcontractor shall conduct environmental toolbox talks with respect to waste management to their labourers and workers on a regular basis.

5.4.6 Suppliers

Each supplier shall be responsible for making sure that it complies with any environmental mitigation measures required by the Waste Management Plan. In particular, each supplier shall examine the methods of packaging goods and material to reduce potential future waste whenever practicable and shall consider opportunities for the return/re-use of packaging material.

5.4.7 Manager, Group Systems (Located at Leighton Contractors (Asia) Limited’s Head Office)

Leighton Contractors (Asia) Limited Revision 2 03.04.2006

Paper copies are uncontrolled. The controlled version is on the Project Server

The manager, group systems is management representative for the Leighton Contractors (Asia) Limited environmental management system. Responsibilities with respect to the implementation of this Waste Management Plan include:

ensuring that environmental management system requirements are established, implemented and maintained in accordance with ISO 14001;
reporting to senior management on the performance of the environmental management system including progress towards achieving overall environmental objectives and targets;
promoting awareness of new legislative requirements when necessary;
giving support, advice and/or assistance to project staff with respect to the environmental management system;
training Leighton Contractors (Asia) Limited personnel in the use of the Leighton Contractors (Asia) Limited Environmental Management System as necessary, and
arranging and conducting environmental management system compliance audits.

5.4.8 Environmental Team Leader / Environmental Team, ERM, Hong Kong Ltd. (ETL/ET)

The ETL/ET, ERM Hong Kong, Ltd., shall:

-Review the EIA Report and the detailed designs to ensure that the EIA recommendations and any other measures identified during the reviews are incorporated into the designs;

- Review works programmes, method statements, licence application and other relevant documentation so as to ensure the best practice would be implemented to generate no unacceptable impacts with respect to waste management to the established guidelines/standards;

- Identify any potential unanticipated or greater than expected waste impacts;

- Formulate any necessary preventative or remedial measures to be taken for these potential impacts;

- Liaise with Leighton Contractors (Asia) Limited on waste management regularly and as necessary;

- Carry out complaint investigation, evaluation and identification of preventive and corrective actions

- Undertake environmental site inspection and audit with respect to waste management both regularly and on ad hoc basis at a frequency appropriate to the intensity of the works;

- Liaise and consult with all relevant parties during the implementation of the WMP;

- Address waste management issues in the EM&A Report for submission to the Franchisee Site Representative and Director of Environmental Protection; and

- Report the findings of the site inspections and other environmental performance reviews to IEC and Contractor.

5.4.9 Independent Environmental Checker (IEC), Hyder Consulting Limited

The IEC, Hyder Consulting Limited shall advise the Permit holder (AAHK) on environmental issues related to the project. The role of the IEC shall be independent from the management of construction works; but the IEC shall be empowered to audit the environmental performance of construction.

The main duties of the IEC include the followings:

- Audit the overall waste management programme including the implementation of all waste management mitigation measures and submissions relating to WMP;

- Conduct random site inspection;

- Report the findings of the site inspections and other environmental performance reviews to ECO Fuel Development Ltd. and AAHK; and

- Review and verify the monthly EM&A reports.

5.5 Identification of Potential Waste and Adverse Impacts

The following groups of material are likely to be generated during the construction of the project and their disposal has the potential to cause adverse environmental impacts:

site-clearance material;
excavated material;
contaminated soil;
marine sediment;
construction waste;
packaging waste;
chemical waste, and
general refuse.

The main activities that have potential to cause adverse environmental impacts from waste include site clearance, utility diversion, excavation works including substructure, manholes, pipeworks and drainage, marine piling works, marine excavation and laying of submarine pipeline, formwork and falsework, concrete works, wet trades and finishing works and fit-out, plant and equipment maintenance and general welfare arrangements for the workforce. The proposed mitigation measures to avoid or minimize the quantity of construction and demolition material generated during the project are described in Section 5.8 and in the control plan for waste and chemical management as detailed in Appendix A.

5.5.1 Site Clearance

Waste material may be generated from site clearance including existing vegetation and trees and surface infrastructure.

5.5.2 Excavated Material

Significant quantities of excavated material will be generated from activities associated with Permanent Aviation Fuel Facility. However, all of this material can be reused on site for purposes such as landscaping or to form bund walls.

5.5.3 Sand Surcharge Material

Significant quantities of sand material will be generated from activities associated with Permanent Aviation Fuel Facility. The majority of this material can be reused on site for purposes such as fill material to excavations and under the tanks. All efforts will be made to ensure that material surplus to requirements will be reused on other contracts.

5.5.4 Dredged Marine Mud

Marine sediment, which is the seabed deposit, is mainly generated from excavation/dredging of sediment/mud. It could be classified as contaminated and uncontaminated based on its contamination level with reference to Chemical Exceedance Level (CEL) laid down in Appendix A of the Environment, Transport and Works Bureau Technical Circular (Works) No 34/2002, Management of Dredged/Excavated Sediment, Environment, Transport and Works Bureau. Significant quantities of marine sediment will be excavated and disposed during the marine pipeline laying works from receiving jetty at Sha Chau to the on-shore Permanent Aviation Fuel Facility at Tuen Mun area.

5.5.5 Construction Waste

Construction waste comprises unwanted material generated during construction, including rejected structures and material, material that has been over ordered or is surplus to requirement and material that has been used and discarded. Waste will arise from a number of site activities throughout the construction period and may include:

Leighton Contractors (Asia) Limited Revision 2 03.04.2006

Paper copies are uncontrolled. The controlled version is on the Project Server

a) Concrete and Other Cementitious Material

Surplus concrete, concrete debris and cementitious material may result from:

general in-situ concrete works;
wet trades (eg, broken bricks and block, abandoned tiles);
material that has been over-ordered;
rejected material, and
washing out of equipment.

b) Timber

Timber waste may be generated from the fabrication and use of timber formwork.

c) Steel and Other Metallic Waste

The main source of steel waste and other metallic waste is off-cuts resulting from cutting and bending steel reinforcement, steel plates, pipe offcuts and sheet piles for temporary works and E&M fit-out works.

d) General Building Material

The main source of building material waste is surplus bricks, blocks and wall and floor finishes.

5.5.6 Packaging Material

Many types of material and components are delivered to site in cardboard, plastic or timber packaging.

5.5.7 Plastic Waste

The main source of plastic waste is plastic sheets for packaging of material and abandoned sealant cartridge equipment and plastic drink bottles.

5.5.8 Chemical Waste

Chemical waste is generated on site through the maintenance of plant and equipment or following spillage and may include:

scrap batteries or spent acid/alkali from their maintenance;
used lubricating and hydraulic oil from plant and equipment servicing;
used air, oil and fuel filters from machinery; – oily rags;
surplus paint;
spent solvents solutions from equipment cleaning activities, and
contaminated material from spill clean up (eg, sand, sawdust or absorbent).

Adverse impacts such as land contamination and water pollution will result if material is disposed of incorrectly.

5.5.9 General Refuse

The presence of a construction site with many workers will result in the generation of a variety of general refuse material requiring disposal. General refuse may include food waste, aluminium cans and packing and waste paper.

Leighton Contractors (Asia) Limited Revision 2 03.04.2006

Paper copies are uncontrolled. The controlled version is on the Project Server

Adverse impacts such as windblown litter, water pollution, odour, hygiene risk and visual impact may occur, together with use of landfill capacity for disposal.

5.6 Estimated Quantities of Waste by Type

The Waste Flow Table included as Appendix B lists the different types of waste stream that are likely to be generated during the works. The Waste Flow Table will be maintained throughout the construction period.

The Waste Flow Table shall be updated on a monthly basis and submitted to the FSR by 1 June and 1 December each year.

According to the Construction and Demolition Material Management Plan, the estimated waste generation pattern is tabulated in the table 5.3 below.

Table 5.3 Estimated waste generation

Inert construction Waste Category and demolition material for Natural Excavated Materials, such as fill Waste Type Marine deposit (Type I) Nil Expected Quantity 274,000 m3 Disposal Location As allocated by EPD/CEDD (South Cheung Generation Period Nov 06 – Feb 07
Non-inert construction disposal material for disposal Site clearance material (eg, trees and vegetation) General refuse Packaging, Plastic 700 m3 11,000 m3 3,600 kg WENT Landfill Chau, East Ninepins or East Sha Chau) WENT Landfill WENT Landfill Dec 05 – Mar 06 Nov 05 – Aug 08 Feb 06 – Aug 08
and demolition material to be re-used or recycled Inert construction Sand surcharge material Natural Excavated Material, such as fill and rock 30,032m3 50,922 m3 On site On site Nov 05 – May 06 Feb 06 – Jan 08
Sand surcharge material 10,000m3 Off site to other contracts via WillPak Nov 05 – May 06
Non-inert construction and demolition waste to be recycled/ Recyclables: Metal / Paper/ Packaging/Timber 320,000 kg Engineering Ltd. Paper: Lau Choi Kee Papers co. Other materials to recycling company Feb 06 – Aug 08
reused on site soil, trees and vegetation) Site clearance material (e.g., top 15,000m3 appointed as necessary On site 08 Feb 06 – Aug
Timber Contaminated soil 5000kg Nil The recycling company has to be appointed Feb 06 – Aug 08
required licensed disposal Special waste Chemical waste 200m3 Tsing Yi N/A Feb 06 – Aug 08 N/A

5.7 Performance Targets

To facilitate assessment of the effectiveness of the waste-management measures, the following performance targets shall be adopted as far as practicable:

all excavated material will be sorted to recover inert portions (eg, soil and broken rock) for re-use on site or disposal to designated outlets (eg, public filling areas);
vegetation cleared on site will be stockpiled and used as mulch on landscape bunds;
all timber will be recovered on site for collection by a recycling contractor;
all metal will be recovered on site for collection by a recycling contractor; and
all cardboard and paper packaging (for plant, equipment and material) will be recovered on site, properly stockpiled in dry conditions and covered to prevent cross contamination by other construction and demolition material for collection by a recycling contractor.

5.8 Waste-mitigation Measures

The proposed mitigation measures to avoid or minimize the quantity of construction and demolition material generated during the project are described in the following sections and control plan for waste and chemical management is detailed in Appendix A. The proposed disposal arrangement is also listed and shall be confirmed with CEDD, EPD and FMC in due course.

5.8.1 Site clearance

Site clearance will take place during the execution of activities associated with Permanent Aviation Fuel Facility. Surplus vegetation and organic matter generated shall be stockpiled and used as mulch on the landscape bunds. During site clearance, the relevant requirements of the Construction Dust Regulations shall be adopted.

5.8.2 Demolition Material

Demolition material shall be segregated to maximize possible re-use and recycling. Bituminous material arising from the excavation of existing pavements may be re-used on-site for paving. Inert construction and demolition material may be re-used on site or disposed to public filling Tuen Mun Area 38 fill bank. Other material such as steel shall be recycled as far as practicable. Leighton Contractors (Asia) Limited shall examine further opportunities to use recycled construction and demolition material (eg, from the construction-and-demolition material recycling facility at Tuen Mun Area 38) on the site taking account of the latest available information and the requirements of Works Bureau Technical Circular 12/2002, Specifications Facilitating the Use of Recycled Aggregates.

5.8.3 Surplus Excavated Material

Substantial amount of surplus excavated material will arise from activities associated with Permanent Aviation Fuel Facility. About 50,992 cubic metres of surplus excavated natural material, such as fill material or rock grade IV & V of size less than 200mm, will be made to re-use that material on site or at other sites requiring fill material subject to actual site conditions.

Concrete waste excavated on site shall be sorted and used as armour stone over the pipe line where suitable material is recovered.

An estimated 274,000 cubic metres of Type I marine deposits generated will be disposed of in designated open-sea disposal areas, in accordance with the Particular Specification.

Excavated material shall be segregated from other waste to avoid possible contamination, therefore allowing re-use on site or at other sites that can utilize the material.

5.8.4 Marine Sediment

It is anticipated that about 274,000 m3 (in-situ) material requiring Type 1 open sea disposal.

Dumping permits shall be obtained for the disposal of surplus uncontaminated sediment at the open sea disposal facility.

The management of the marine sediment will be in accordance with the mitigation measures for marine sediment in Appendix A.

5.8.5 Construction Waste Material

The use of prefabricated components shall be considered to reduce the quantity of waste arising from the project. In general, construction waste shall be minimized by carefully planning construction activities to make sure resources are used efficiently and to avoid over ordering. Proper storage and handling procedures shall be used to minimize waste resulting from damage to material.

a) Concrete and Other Cementitious Material

Concrete for both temporary and permanent works shall be delivered to the site in mixer trucks. Depending on access arrangements the concrete shall either be discharged directly from the truck chute or by crane and skip. Concrete delivery shall be controlled to prevent spillage of the concrete. Cleaning out of the truck chute and mixer drum shall be into a designated waste skip or onto plastic sheeting. Waste concrete shall be allowed to harden and then shall be removed from the site.

To minimize waste arising from the use of concrete and other cementitious material, construction activities shall be carefully planned to make sure that resources are used efficiently and that material is not over ordered. When practicable, alternative uses for excess concrete shall also be identified. When disposal is unavoidable, material shall be collected and stored to avoid contamination such that it can be disposed of to a Public Filling Facility.

A target of less than 4.25% of the quantity of concrete waste expressed as a percentage of total quantity delivered have been set for this project to reduce concrete wastage.

Leighton Contractors (Asia) Limited Revision 2 03.04.2006

Paper copies are uncontrolled. The controlled version is on the Project Server

b) Timber

Waste (e.g. timber from timber formwork/hoarding) arising from temporary works on site can be minimised by alternative forms of design and construction methods. The alternative forms of design and construction methods facilitate not only minimising temporary works and extending their lifespan to reduce waste, but also allowing the use of reusable or recyclable components. Proposed measures to reduce use of timbers in temporary works construction are:-

(a)
Consider how the design is constructed to minimise temporary works;
(b)
Consider alternative forms of design to reduce temporary works;
(c)
Check with contractor or experienced constructors the construction methods and materials that can reduce temporary works;
(d)
Choose temporary work materials that can be reused on other sites such as metal hoarding or metal scaffolding;
(e)
Consider the use of high-quality temporary components that can be reused and last longer; and
(f)
Allow the use of prefabrication or modularisation to minimise on site works that produce waste.

Leighton Contractors (Asia) Limited shall avoid, reduce or minimize the use of timber in temporary works construction as far as possible. Where the Contractor has to use timber for temporary works construction for one process/activity with an estimated quantity exceeding 5m³ or otherwise set by the FSR, he should submit a method statement to the FSR for agreement prior to commencement of the works. The method statement should include the justification for and the measures taken to minimize the use of timber in the temporary works. In addition, the Contractor shall provide a summary table, as attached in Appendix D, containing the description, justification and the estimated quantity for every work process/activity requiring the use of timbers for temporary works irrespective of the quantity of timber used.

Timber formwork shall be carefully dismantled to prevent damage. The timber shall be de-nailed, cleaned and stacked neatly for re-use. Timber hoarding shall not be used and the use of tropical hardwood is prohibited. Wooden pallets for material delivery may be returned to the supplier for re-use.

c) Steel and Other Metallic Waste

Steel waste will come from three main sources: reinforcing steel, steel sheet piles, and offcuts from the storage tank construction. All steel deliveries shall be offloaded using a crane truck. Steel material shall be lifted correctly, stored on timbers and stacked neatly to prevent damage.

Reinforcing steel shall be cut and bent to the approved bar bending schedules. Every effort shall be made to utilize the complete 12-metre length of reinforcing steel bar to minimize off-cuts. Checks shall be made to make sure that the reinforcing steel is cut and bent correctly to prevent errors and the need to scrap

Leighton Contractors (Asia) Limited Revision 2 03.04.2006

Paper copies are uncontrolled. The controlled version is on the Project Server

incorrectly-bent steel. Off-cuts shall be used to support rebar cages. All surplus steel shall be placed in a skip for recycling.

Steel sheet piles shall be handled correctly to prevent damage. The driving of a sheet pile shall be controlled to ensure maximum utilization of the entire length of the sheet pile. Sheet-pile off-cuts shall be re-used as much as practicable. Scrap sheet piles shall be stacked neatly on timber.

The steel storage tanks contain approximately 4,400 tonne of plate and structural steel, to minimize wastage of steel plate, cutting sheets will be prepared to match the available plate sizes of the supply mill.

Plates steel will be cut and prepared off site where possible. Structural steel for the roof trusses and walkways will be fabricated off site and fixed together on site. Piping isometrics and cutting sheets will be prepared to minimize the amount of off-cut pipework. Plate steel will be delivered to site by barge to minimize handling.

For other metallic waste once identified, recycling companies shall be sought when the quantity and quality of waste makes recycling practicable and cost effective.

d) General Building Material

Good housekeeping measures shall be adopted on site to minimize the quantity of waste that requires disposal. Those measures shall include the allocation of designated storage areas, making sure material is handled carefully by operatives and by implementing a stock management plan.

5.8.7 Packaging Material

The methods of packaging goods and material shall be examined with suppliers when placing orders to minimize potential future waste.

Packaging material may be returned to the supplier when that service is offered. Alternatively, efforts shall be made to identify and utilize companies that are prepared to accept packaging material of the quality and quantity produced by the site for recycling purposes. That material shall be segregated and removed from site periodically.

5.8.8 Plastic Waste

The mitigation measures identified in Appendix A shall apply to plastic sheets for packaging of material and equipment.

Plastic drink bottles shall be segregated and collected for recycling purposes.

5.8.9 Chemical Waste

Chemical waste shall be disposed in accordance with statutory requirements. The project site shall register as a chemical waste producer with the Environmental

Leighton Contractors (Asia) Limited Revision 2 03.04.2006

Paper copies are uncontrolled. The controlled version is on the Project Server

Protection Department and shall establish suitable temporary storage facilities for that waste at the site. Those facilities and methods shall comply with the Code of Practice on the Packaging, Labelling and Storage of Chemical Wastes.

Containers used for the storage of chemical waste (mainly spent lubricating oil)

shall:

(a)
be suitable for the substance they are holding, resistant to corrosion, maintained in a good condition, and securely closed;
(b)
have a capacity of less than 450 litres unless the specification have been approved by the EPD; and
(c)
display a label in English and Chinese in accordance with instruction prescribed in Schedule 2 of the Waste Disposal (Chemical Waste)(General) Regulation.

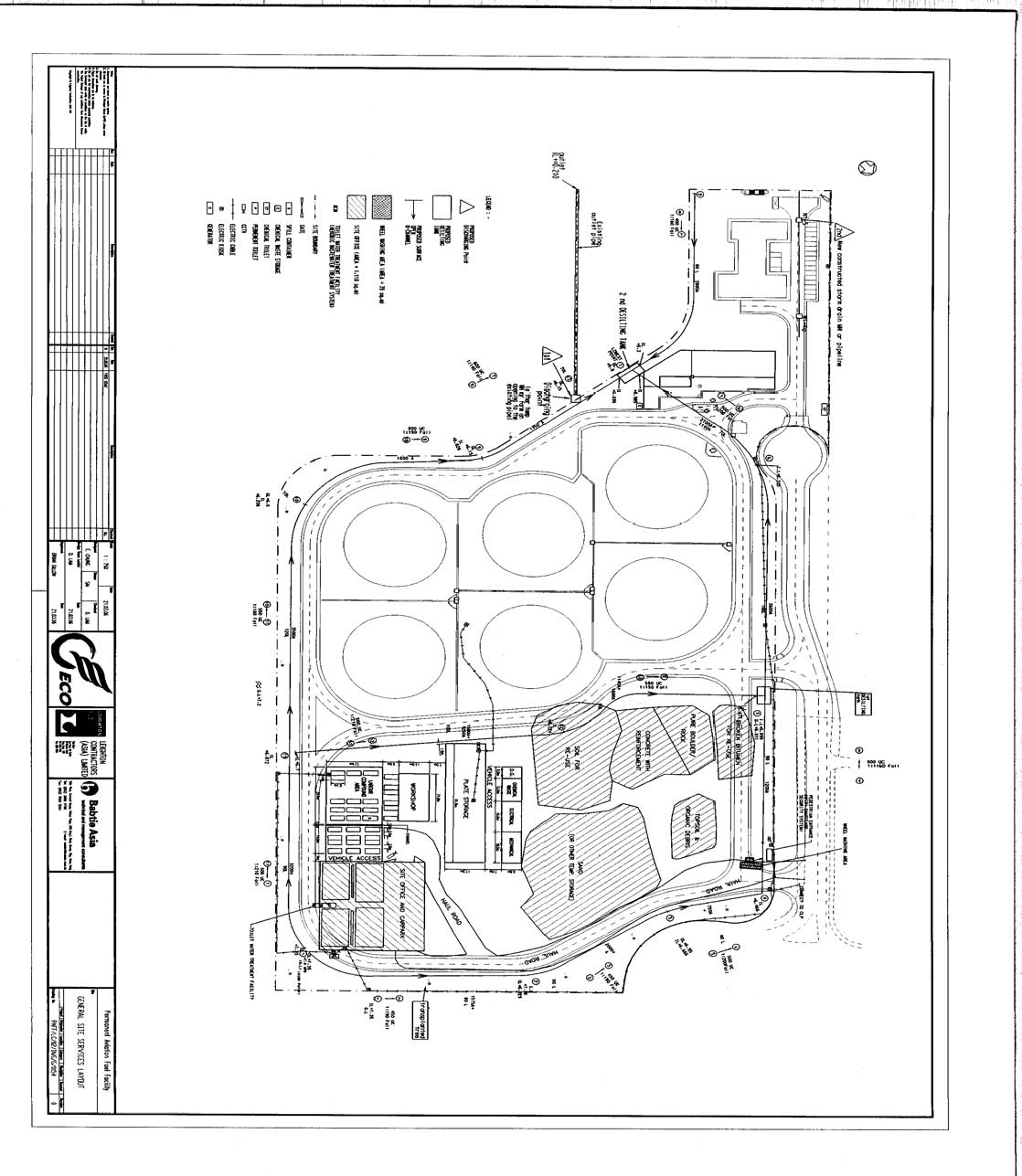
The storage area for chemical wastes, as shown in Figure 5-2, shall:

(a)
be clearly labelled and used solely for the storage of chemical waste;
(b)
be enclosed on at least three sides;
(c)
have an impermeable floor and bunding, of capacity to accommodate 110% of the volume of the largest container or 20% by volume of the chemical waste stored in that area;
(d)
have adequate ventilation;
(e)
be covered to prevent rainfall entering (water collected within the bund must be tested and disposed as chemical waste if necessary); and
(f)
be arranged so that incompatible materials are adequately separated.

Disposal of chemical waste shall:

(a)
be via a licensed waste collector; and
(b)
be to an off site facility licensed to receive chemical waste, such as a recycling facility located in Yuen Long Industrial Estate or the Chemical Waste Treatment Facility located in Tsing Yi; or
(c)
be to a reuser of the waste, under the approval from the EPD.

Trip tickets for disposal shall be retained. Other hazardous material used on site shall be stored to minimize the risk of land contamination or water pollution. Measures shall typically include the use of bunded areas for bulk storage and drip trays or impermeable sheeting covered by absorbent material to collect accidental spillage.

The environmental emergency procedures as shown in appendix E shall be implemented to deal with any accidental spillage of chemicals on site.

5.8.10 General Refuse

General refuse generated on-site shall be stored in bins or skips separate from construction and chemical wastes. General refuse shall be removed frequently to

Leighton Contractors (Asia) Limited Revision 2 03.04.2006

Paper copies are uncontrolled. The controlled version is on the Project Server

minimize odour, pest and litter impacts and shall be disposed to strategic landfill. The burning of refuse on-site is prohibited.

Measures that encourage waste avoidance/minimisation include:

(a) Reducing the number of photo copies to a minimum and by copying on
both sides of paper for internal documents and external documents where
appropriate;
(b) Preventing over-ordering of office equipment and consumables;
(c) Procuring green office equipment and consumables in terms of energy
efficiency, recycled content and durability, etc;
(d) Providing drinking facility and encouraging employees to bring their own
cup; and
(e) Discouraging take-out food.

Additional measures that facilitate reuse/recycling and orderly disposal include:

(a)
Deploying sufficient refuse collection bin at convenient locations to facilitate collection of non-recyclables for disposal at landfills;
(b)
Participating local collection scheme (e.g. scheme launched by District Board) if available.

5.8.11 Disposal of Public Fill

Drivers shall be instructed to make sure that their trucks are not overloaded. Visual checks shall be undertaken by site security to make sure trucks are loaded within legal limits and suitably covered.

5.8.12 Disposal of Construction and Demolition Waste to Landfill

When construction and demolition waste cannot be re-used or recycled, it shall be disposed at the approved strategic landfill site.

5.8.13 Site Tidiness

The site shall be kept in a tidy manner at all times. The site establishment shall be planned with areas allocated for containers, plant, storage of material and waste skips. Direct and subcontract labour shall be responsible for making sure that the site is kept in a tidy manner. All labour involved on the site shall be responsible for making sure that tools are cleaned and put away, equipment is stored away after use, and un-used material is neatly stacked or stored in areas provided. All areas of the site shall be kept clean and tidy, access/egress points shall be swept, and passageways shall be kept free from material and plant or equipment. Waste material shall be stored in the receptacles provided, which shall be emptied regularly.

5.9 Site Cleanliness

The measures listed below for the improvement of site cleanliness and to control

Leighton Contractors (Asia) Limited Revision 2 03.04.2006

Paper copies are uncontrolled. The controlled version is on the Project Server

mosquito breeding on construction sites shall be implemented.

the project environmental coordinator shall be responsible for the overall coordination, monitoring and overseeing of the performance of the site on cleanliness;
litter and debris on the site, including that dumped into the site from outside by the public, shall be removed;
debris and rubbish not within the site shall be removed if the debris and rubbish are in connection with the works or have been disposed of by persons working on the site;
excavation material shall be removed promptly or, when stockpiled, material shall be covered with tarpaulins for all excavation works;
traffic cones, where used, shall be kept clean;
hoardings and/or steel barriers shall be regularly cleaned and refurbished, repainted and/or repaired half yearly;
passageways shall be kept clear and free of dirt, waste and timber; and
bamboo poles for bamboo scaffolding shall be cut as near to the point before the nodes of the poles as practicable.

5.10 Waste Management Plan Implementation

5.10.1 Training and Awareness

As part of Leighton Contractors (Asia) Limited’s Environmental Management System, training to address waste-management issues shall be conducted for all Leighton Contractors (Asia) Limited staff, subcontractors and the general workforce. That training may take the form of environmental induction training, tool-box meetings or similar and shall be carried out in accordance with the requirements of the Project Environmental Plan. In addition, waste-management coordination meetings shall be held as necessary. The environmental training programme for Permanent Aviation Fuel Facility is shown below in table 5.4.

Arrangement shall be made for the project director, project environmental coordinator and other key site personnel to attend training on waste management if they have not previously attended similar courses.

Table 5.4 Training Programme

Leighton Contractors (Asia) Limited Revision 2 03.04.2006

Paper copies are uncontrolled. The controlled version is on the Project Server

Page 31 of 73

H2104-WMP Waste Management Plan: Permanent Aviation Fuel Facility (H2104)

Details of Training Training Recipients Trainer / Presenter Target Date Frequency
Detailed review of the Project environmental Manager, December Once
Construction Environmental coordinator Group 2005
Management Plan and Systems or
associated procedures nominee
Introduction to the All project staff Manager, December 05 Once,
Environmental Management Group / January 06 refresher
System and overview of Systems or training
policy and documentation nominee provided on a
needs basis
General Environmental All project staff Project December 05 Periodic as
Awareness Training, environmental and ongoing needs dictate
including the project’s coordinator/
significant environmental manager,
aspects group
systems
Specific training in the Appropriate staff Project As required Dependent on
operation of the environmental identified
Environmental Management coordinator training needs
Plan and Waste Management
Plan and environmental
mitigation controls
Induction to environmental All workers Project Before Once
issues relevant to the environmental commencing
workforce coordinator/sa work on-site
fety officer
Tool-box talks introducing Workforce Project Ongoing Monthly basis
environmental issues environmental
coordinator/sa
fety officer

5.10.2 Segregation

Preliminary sorting of the waste generated from various construction activities as detailed in Section 5.5 shall be conducted on site into distinct categories based on their composition.

During site planning stage, waste facilities shall be designed and established to facilitate on-site sorting of C&D materials, collection of recyclable materials by recycling companies, and collection of non-recyclable materials by waste haulers. Proposed types of waste facilities and collection frequency are given in Table 5.5 below.

Table 5.5 Proposed Types of Waste Facilities

Waste skip Waste Facility Refuse collection bin Chemical waste store Chemical toilet C&D waste, general refuse Waste Type(s) General refuse (i.e. non-recyclable materials) Chemical waste such as spent lubricating oil Toilet waste Once the skip is filled. Collection Frequency* Once the bin is filled. Once the container is filled Two days per week (chemical toilet)

Page 32 of 73

H2104-WMP Waste Management Plan: Permanent Aviation Fuel Facility (H2104)

Temporary

Inert C&D hard and soft

Once the temporary

sorting/storage/

materials, scrap metals and

sorting/storage/stockpiling

stockpiling area

reclaimed asphalt pavement

areas are filled

(RAP)

*Collection frequency shall be reviewed based on the actual storage capacity of the waste facilities and minimum collection frequency may be required apart from stipulating collection only when the bin is full.

Surplus construction-and-demolition material shall be sorted on site into inert and non-inert material for disposal. Inert construction-and-demolition material shall be segregated on-site in order to maximize the recovery of re-usable and recyclable material. A system of work for on-site sorting shall be included to identify the source of generation, estimated quantity, arrangement for on-site sorting and collection, temporary storage areas, frequency of collection by recycling contractors or frequency of removal off-site. Consideration shall be taken to sort inert construction and demolition material at source to avoid double handling as far as practicable. Except for re-usable inert construction-and-demolition material, all other inert construction-and-demolition material shall be broken down into manageable size and removed off-site as soon as practicable to optimize the use of the on-site storage space.

As far as practicable, general refuse shall be segregated at source by the use of bins for different types of material.

5.10.3 Recycling

Arrangements shall be made with potential recycling contractors so that recyclable material sorted from the site is collected with reasonable care. The quantities of recyclable material shall be recorded before removal off site by the designated recycling contractor and details shall be included in the Waste Flow Table.

5.10.4 Monitoring and Reporting

Regular inspection shall be carried out by area managers and the project environmental coordinator to inspect the site to make sure that performance is satisfactory and complies with the Waste Management Plan.

A comprehensive checklist, as shown in Appendix C, for use during the weekly inspection shall be used. The defects or deficiencies identified during the weekly inspection on waste management, together with their respective locations and the agreed due dates for rectification, shall be entered in a summary table of follow-up actions. The summary table of follow-up actions shall be agreed and signed by the project environmental coordinator and a copy shall be provided to relevant project staff. Rectification of the deficiencies identified shall be carried out promptly in accordance with the Follow-up Action Plan.

Regular inspection will also be carried out by area managers, the project environmental coordinator and the ETL/ET to inspect the site to make sure that performance is satisfactory and complies with the Waste Management Plan as per the requirements of the EM & A Manual.

comments on the non-compliance record where applicable.

ET – Contractor’s Environmental Team; IEC – Independent Environmental Checker; FSR – Franchisee’s Site Representative

5.10.5 Audit

The Environmental Management System is subject to regular audits by the manager, group systems. The results of those audits are reported to directors and senior management via regular environmental management committee meetings.

The project shall also be subject to third-party audits carried out by the Hong Kong Quality Assurance Agency to check compliance with the ISO 14001 standard.

5.10.6 Records

All environmental records (eg, delivery dockets, trip tickets, estimates of waste quantities, photographs and measurement records) generated during implementation of the Waste Management Plan shall be placed in the project filing system. Trip tickets shall be maintained for the disposal of chemical waste.

Copies of the Monthly and Yearly Summary Waste Flow Table together with the summary table for work process or activities requiring timber for temporary works shall be maintained.

5.10.7 Performance Monitoring

The following items shall be included in the agenda for discussion at every project environmental review committee meeting, or other agreed established channels for performance monitoring:

review the Waste Management Plan; including the quantities and types of construction and demolition material generated, re-used and disposed off-site; the amount of fill material imported to the site and quantity of timber used in temporary works for each construction process/activity;
monitoring performance to assess the effectiveness of the Waste Management Plan, and
monitoring follow-up actions on any identified defects and deficiencies.

5.11 Conclusion

Construction and demolition waste, chemical waste and general refuse arising from construction activities shall be managed in accordance with the proposed mitigation measures and statutory requirements. Each waste stream shall be kept segregated whenever practicable to avoid cross-contamination allowing inert construction waste to be re-used as far as practicable or disposed of at public filling facilities, thereby minimizing the need for disposal to strategic landfill.

The Waste Management Plan for the project shall be incorporated within the framework of the Leighton Contractors (Asia) Limited Management System. The system shall set out the operational and monitoring requirements to ensure successful implementation.

Section 6 – Glossary of Terms

C&D material

Construction-and-demolition material for disposal that contains a mixture of inert and non-inert material. The inert portion is known as public fill and comprises excavated earth, asphalt, building debris, broken rock and concrete. The non-inert portion is classified as construction-and-demolition waste (see below).

C&D waste

Construction-and-demolition waste is material that is not accepted for disposal at public filling facilities. That material may include marine mud, household refuse, plastic, metal and chemical waste, vegetable material and other unsuitable material.

chemical waste

Any substance or thing being scrap material, effluent or an unwanted substance or by-product arising from the application of or in the course of producing any substance or chemical specified in Schedule 1 of the Waste Disposal (Chemical Waste) (General) Regulation if such substance or chemical occurs in such form, quantity and concentration so as to cause pollution or constitute a danger to health or risk of pollution to the environment.

landfill

A strategically-located waste-disposal area that accepts construction and demolition waste.

PEC

Project environmental coordinator – a generic term for the environmental management representative at the project office.

public filling facility

Public filling facilities are managed by the Civil Engineering and Development Department and include:

public-filling areas (usually a designated part of a development project that accepts public fill for reclamation purposes);
public barging point, and
public-fill stockpile areas or “fill banks”.

public fill stockpile area

A newly-reclaimed land area where public fill is stockpiled as surcharging material to accelerate the settlement process. It also may be used to stockpile material for reprocessing and re-use (eg, as recycled aggregate).

Public Fill Committee

The Public Fill Committee has the responsibility to implement measures to promote avoidance, minimization, re-use and recycling of construction and demolition material. It also oversees the management of public-filling operations and facilities and the use of land-based fill reserves. In addition, the Public Fill Committee produces and circulates

Leighton Contractors (Asia) Limited Revision 2 03.04.2006

Paper copies are uncontrolled. The controlled version is on the Project Server

the Public Filling Programme and designates the public-filling facilities for public-works projects.

FSR

Franchisee’s Site Representative

Client

ECO Aviation Fuel Development Ltd.

Client’s Representative

The Person named by ECO Aviation Fuel Development

ETL / ET

Environmental Team Leader / Environmental Team, ERM, Hong Kong Ltd.

IEC

Independent Environmental Checker, Hyder Consulting Limited

Figure 2-1: General Location Plan

H2104-WMP Waste Management Plan:

Permanent Aviation Fuel Facility (H2104)

Figure 5-2: Location Plan for Waste Facilities and Stockpiling Areas

Appendix A Environmental Control Plan ECP 5 – Waste and Chemical Management

Permanent Aviation Fuel Facility Waste Management Plan

Environmental Control Plan LEIGHTON
Contract Name: Permanent Aviation Fuel Facility Plan No. ECP 5
Environmental Aspect: Waste and Chemical Management Contract No: H2104
Item Required Mitigation Measures and Operational Controls Objectives of Measures (concerns to address) Action by Location and Activity Frequency or Duration Performance Standard to be Achieved
Storage, Collection and Transportation
1 Handle and store waste in a manner that ensures that it is held securely without loss or leakage Establish separate waste bins for construction waste, general refuse and recyclables on-site and have their locations labelled on the site-layout plan Minimize the potential for pollution (Contract compliance) Area Managers All construction sites Construction stage Different waste stream are handled and stored in accordance with site-layout plan and Waste Management Plan
2 Use waste collectors authorized or licensed to collect the specific category of waste Only engage licensed waste collectors during the procurement phase Waste disposal control (Contract compliance) Area Managers All construction sites Construction stage Waste collectors authorized and licensed by Environmental Protection Department
3 Remove waste in a timely manner Allocate staff to monitor capacity of storage facilities and contact licensed waste collectors for collection, include check item on routine environmental checklist Waste management and housekeeping (Prevent visual impacts and hygiene concerns) Area Managers All construction sites Construction stage Adequate capacity for workforce activities

© Leighton Contractors (Asia) Limited, 2005 Page 42 of 73 H2104 WMP; Revision 2; 03.04.06. Permanent Aviation Fuel Facility Waste Management Plan

Environmental Control Plan LEIGHTON
Contract Name: Permanent Aviation Fuel Facility Plan No. ECP 5
Environmental Aspect: Waste and Chemical Management Contract No: H2104
Item Required Mitigation Measures and Operational Controls Objectives of Measures (concerns to address) Action by Location and Activity Frequency or Duration Performance Standard to be Achieved
4 Maintain and clean waste storage areas Waste management Area Managers All construction Construction stage Maintained and
regularly and housekeeping to sites cleaned in
Establish maintenance schedule, allocate labour to carry out routine maintenance and cleaning prevent visual impacts and hygiene concerns accordance with maintenance schedule
(Contract
compliance)
5 Minimize wind-blown litter and dust Prevention of public Area Managers All construction Construction stage Visual check by gate
during transportation by either covering trucks or transporting wastes in an enclosed container Secure cover prior to leaving and make road contamination (Contract compliance) sites attendant or other assigned personnel
sure truck is not overloaded
6 Obtain the necessary waste-disposal permits from the appropriate authorities, if they are required, in accordance with the Waste Disposal Ordinance (Cap 354), Waste Disposal (Chemical Waste) (General) Regulation (Cap 354) and the Land (Miscellaneous Provisions) Ordinance (Cap 28) Prevention of uncontrolled waste disposal (Legal compliance) Area Managers All construction sites Construction stage Waste disposal permits issued by appropriate authorities
Apply well in advance of disposal activities

© Leighton Contractors (Asia) Limited, 2005 Page 43 of 73 H2104 WMP; Revision 2; 03.04.06. Permanent Aviation Fuel Facility Waste Management Plan

Environmental Control Plan LEIGHTON
Contract Name: Permanent Aviation Fuel Facility Plan No. ECP 5
Environmental Aspect: Waste and Chemical Management Contract No: H2104
Item Required Mitigation Measures and Operational Controls Objectives of Measures (concerns to address) Action by Location and Activity Frequency or Duration Performance Standard to be Achieved
7 Dispose of waste at licensed sites Engage licensed waste collectors for disposal, incorporate trip-ticket system Prevention of uncontrolled waste disposal (Legal compliance) Area Managers All construction sites Construction stage In accordance with permit conditions, record of signed and chopped trip tickets
8 Develop procedures, such as a ticketing system, to facilitate tracking of loads, particularly for chemical waste, and to ensure that illegal disposal of waste does not occur Set up trip ticket system in accordance with requirements set out in ETWB TC 31/2004, issue trip ticket for each truck load of waste being transported off site Prevention of uncontrolled waste disposal (Legal compliance) Area Managers All construction sites Construction stage Signed and chopped trip tickets returned for each truckload of waste, in accordance with Waste Management Plan
9 Maintain records of the quantities of wastes generated, recycled and disposed Establish waste flow tables at Contract start and keep them maintained and updated throughout the Contract period Waste management Area Managers All construction sites Construction stage Waste flow tables updated at least on a monthly basis, in accordance with Waste Management Plan
Contaminated Soil and Marine Deposit
1 Uncontaminated marine deposits shall require open-sea disposal Engage licensed waste collectors, incorporate trip-ticket system Waste disposal control (Legal and contractual compliance) Area Managers All construction sites Construction stage Record of signed and chopped trip tickets

© Leighton Contractors (Asia) Limited, 2005 Page 44 of 73 H2104 WMP; Revision 2; 03.04.06. Permanent Aviation Fuel Facility Waste Management Plan

Environmental Control Plan LEIGHTON
Contract Name: Permanent Aviation Fuel Facility Plan No. ECP 5
Environmental Aspect: Waste and Chemical Management Contract No: H2104
Item Required Mitigation Measures and Operational Controls Objectives of Measures (concerns to address) Action by Location and Activity Frequency or Duration Performance Standard to be Achieved
2 During the handling of contaminated/uncontaminated marine sediment, all construction plant and equipment shall be designed and maintained to minimize the risk of silt, Prevention of uncontrolled release of waste material Area Managers All construction sites Construction stage Construction plant and equipment maintained in accordance with maintenance
sediments, contaminants or other schedule, maintain
pollutants being released into the water column or deposited in the locations other than designated location plant and equipment in designated area (eg, workshop) only
Establish maintenance schedule, collect
and treat cleaning water from plant maintenance prior to discharge
3 During the handling of contaminated/uncontaminated marine sediment, size all vessels such that adequate draft is maintained between vessels and the sea bed at all states of the Prevention of contaminated deposit from releasing into the water column Area Managers Barging point Construction stage Adequate clearance to seabed as appropriate
tide to ensure that undue turbidity is not generated by turbulence from vessel movement or propeller wash
Select vessel taking account of sea-bed profile

© Leighton Contractors (Asia) Limited, 2005 Page 45 of 73 H2104 WMP; Revision 2; 03.04.06. Permanent Aviation Fuel Facility Waste Management Plan

Environmental Control Plan LEIGHTON
Contract Name: Permanent Aviation Fuel Facility Plan No. ECP 5
Environmental Aspect: Waste and Chemical Management Contract No: H2104
Item Required Mitigation Measures and Operational Controls Objectives of Measures (concerns to address) Action by Location and Activity Frequency or Duration Performance Standard to be Achieved
4 During the handling of contaminated/uncontaminated marine sediment and before moving the vessels that are used for transporting dredged material, clean excess material from the Prevention of dredged material from releasing into the water column Area Managers Barging point Construction stage No visible excess material on deck and exposed fittings of vessels
decks and exposed fittings of vessels and the excess material shall never be
dumped into the sea except at the approved locations
Allocate labour to clean using brush, shovel or similar and place excess material back onboard of vessels
5 During the handling of contaminated/uncontaminated marine sediment, maintain adequate freeboard to ensure that decks are not washed by wave action Prevention of uncontrolled release of waste material Area Managers Barging point / sediment handling Construction stage Adequate freeboard as appropriate
Ensure vessels are not overloaded at all
time

© Leighton Contractors (Asia) Limited, 2005 Page 46 of 73 H2104 WMP; Revision 2; 03.04.06. Permanent Aviation Fuel Facility Waste Management Plan

Environmental Control Plan LEIGHTON
Contract Name: Permanent Aviation Fuel Facility Plan No. ECP 5
Environmental Aspect: Waste and Chemical Management Contract No: H2104
Item Required Mitigation Measures and Operational Controls Objectives of Measures (concerns to address) Action by Location and Activity Frequency or Duration Performance Standard to be Achieved
6 During the handling of contaminated/uncontaminated marine Prevention of uncontrolled waste Area Managers Barging point / sediment handling Construction stage Logs and records of all vessels movement
sediment, monitor all vessels transporting material to ensure that no dumping outside the approved location takes place. Logs and other records shall disposal (Legal compliance) transporting material for disposal
be kept and produced to demonstrate compliance and that journeys are
consistent with designated locations and copies of such records shall be submitted
to the Engineer
7 During the handling of Prevention of Area Managers Barging point / Construction stage No breach of license
contaminated/uncontaminated marine sediment, comply with the conditions in uncontrolled waste disposal sediment handling condition
the Dumping Licence (Legal compliance)
8 During the handling of contaminated/uncontaminated marine Prevention of uncontrolled release Area Managers Barging point / sediment handling Construction stage Tightness checked in accordance with
sediment, fit all bottom-dumping vessels (hopper barges) with tight fittings seals of waste material maintenance schedule
to their bottom openings to prevent leakage of material
9 During the handling of contaminated/uncontaminated marine Prevention of uncontrolled release Area Managers Barging point / sediment handling Construction stage No adverse impacts or complaints
sediment, place the material into the disposal pit by bottom dumping. of waste material

© Leighton Contractors (Asia) Limited, 2005 Page 47 of 73 H2104 WMP; Revision 2; 03.04.06. Permanent Aviation Fuel Facility Waste Management Plan

Environmental Control Plan LEIGHTON
Contract Name: Permanent Aviation Fuel Facility Plan No. ECP 5
Environmental Aspect: Waste and Chemical Management Contract No: H2104
Item Required Mitigation Measures and Operational Controls Objectives of Measures (concerns to address) Action by Location and Activity Frequency or Duration Performance Standard to be Achieved
10 During the handling of contaminated/uncontaminated marine Prevention of uncontrolled release Area Managers Barging point Construction stage Barge-type approved
sediment, transport contaminated marine mud by split barge of not less than 750 m3 capacity and capable of rapid opening of waste material
and discharge at the disposal site
11 During the handling of contaminated/uncontaminated marine Prevention of uncontrolled release Area Managers Dumping pit Construction stage No adverse impacts or complaints
sediment, discharge shall be undertaken rapidly and the hoppers shall be closed of waste material
immediately
12 During the handling of contaminated/uncontaminated marine sediment, material adhering to the sides of the hopper shall not be washed out of the hopper and the hopper shall remain closed until the barge returns to the disposal site Prevention of uncontrolled release of waste material Area Managers Barging point Construction stage No adverse impacts or complaints
Clean using brush, shovel or similar and place material back onboard of vessels

© Leighton Contractors (Asia) Limited, 2005 Page 48 of 73 H2104 WMP; Revision 2; 03.04.06. Permanent Aviation Fuel Facility Waste Management Plan

Environmental Control Plan LEIGHTON
Contract Name: Permanent Aviation Fuel Facility Plan No. ECP 5
Environmental Aspect: Waste and Chemical Management Contract No: H2104
Item Required Mitigation Measures and Operational Controls Objectives of Measures (concerns to address) Action by Location and Activity Frequency or Duration Performance Standard to be Achieved
Construction and Demolition Material
1 Opportunity for re-using of fill material for back-filling should be optimized Investigate opportunity to re-use fill material at Permanent Aviation Fuel Waste management, minimize disposal of material Area Managers All construction sites Construction stage Quantities of fill material re-used exceed original anticipation
Facility and other projects at Contract start and review proposal periodically. Temporarily stockpile re-usable fill material on-site with appropriate protective measures (eg, cover with impervious sheeting)
2 Transport excavated material that cannot be recycled to public filling areas Prevention of uncontrolled waste Area Managers All construction sites Construction stage Record of signed and chopped trip tickets
Engage licensed waste collectors, incorporate trip-ticket system disposal (Legal compliance)
3 Careful design, planning and good site Prevention of Area Managers / All construction Construction stage Minimize wastage
management to minimize over-ordering and waste material such as concrete, generation of waste Quantity Surveyor sites
mortar and cement grout
4 The design of formwork shall maximize the use of standard wooden panels so that high re-use levels can be achieved. Alternatives such as steel formwork or Prevention of generation of waste by using recyclable material Area Managers / Design Engineer All construction sites Construction stage Approved design by ECO Aviation Fuel Development Ltd.
plastic fencing shall be considered to increase the potential for re-use

© Leighton Contractors (Asia) Limited, 2005 Page 49 of 73 H2104 WMP; Revision 2; 03.04.06. Permanent Aviation Fuel Facility Waste Management Plan

Environmental Control Plan LEIGHTON
Contract Name: Permanent Aviation Fuel Facility Plan No. ECP 5
Environmental Aspect: Waste and Chemical Management Contract No: H2104
Item Required Mitigation Measures and Operational Controls Objectives of Measures (concerns to address) Action by Location and Activity Frequency or Duration Performance Standard to be Achieved
5 Recycle as much as possible of the construction waste on-site. Proper segregation of waste on site to increase the feasibility of recycling certain Waste management (Unnecessary landfill use) Area Managers All construction sites Construction stage Minimize construction waste requiring disposal, recycle steel and
components of the waste stream by recycling contractors (eg, concrete and metals
masonry can be used as general fill and steel reinforcement bars can be used by
scrap-steel mills). Different areas shall be designated for such segregation and
storage wherever site conditions permit
6 Maintain temporary stockpiles and reuse excavated fill material for back- Waste management Area Managers All construction sites Construction stage No unprotected excavated fill
filling and reinstatement material on-site
Temporarily stockpile re-usable fill material on-site with appropriate protective measures (eg, cover with impervious material)
7 Stockpile excavated construction and demolition material adjacent for re-use Temporarily stockpile excavated material with appropriate protective measures (eg, cover with impervious material) to prevent indirect impacts Waste management (Unnecessary waste disposal) Area Managers All construction sites Construction stage All excavated construction and demolition material stockpiled on-site, no unprotected stockpile on-site

© Leighton Contractors (Asia) Limited, 2005 Page 50 of 73 H2104 WMP; Revision 2; 03.04.06. Permanent Aviation Fuel Facility Waste Management Plan

Environmental Control Plan LEIGHTON
Contract Name: Permanent Aviation Fuel Facility Plan No. ECP 5
Environmental Aspect: Waste and Chemical Management Contract No: H2104
Item Required Mitigation Measures and Operational Controls Objectives of Measures (concerns to address) Action by Location and Activity Frequency or Duration Performance Standard to be Achieved
8 Deliver surplus artificial hard material to Tuen Mun Area 38 recycling plant or similar for recycling into subsequent useful products Waste management (Unnecessary waste disposal) Area Managers All construction sites Construction stage Record of signed and chopped trip tickets
Establish waste flow table at contract
start and liaise with recycling plant, engage licensed waste collectors for transportation, incorporate trip-ticket
system
9 Use existing bituminous pavement for Waste management Area Managers All construction Construction stage Minimize disposal of
paving construction access and temporary holding/parking areas (Unnecessary disposal) sites bituminous material
Re-use, as much as practicable, excavated bituminous material
10 Implement on-site sorting and segregation facility for all type of waste generated Establish a designated waste-handling, collection and sorting area to suit current activities and record location on site- Waste management (Unnecessary disposal) Area Managers All construction sites Construction stage Site layout plan up-to-date and posted on notice board, minimize waste disposed of at landfill
layout plan, segregate main waste streams, eg, steel, inert material, general waste, plastics

© Leighton Contractors (Asia) Limited, 2005 Page 51 of 73 H2104 WMP; Revision 2; 03.04.06. Permanent Aviation Fuel Facility Waste Management Plan

Environmental Control Plan LEIGHTON
Contract Name: Permanent Aviation Fuel Facility Plan No. ECP 5
Environmental Aspect: Waste and Chemical Management Contract No: H2104
Item Required Mitigation Measures and Operational Controls Objectives of Measures (concerns to address) Action by Location and Activity Frequency or Duration Performance Standard to be Achieved
11 Dispose the sorted public fill and construction and demolition waste to Prevention of uncontrolled waste Area Managers All construction sites Construction stage Record of signed and chopped trip tickets
public filling areas and landfills, respectively disposal (Legal compliance)
Engage licensed waste collectors, incorporate trip-ticket system
12 The handling and disposal of bentonite slurries shall be undertaken in Prevention of uncontrolled waste Area Managers All construction sites Construction stage In accordance with ProPECC PN 1/94,
accordance with ProPECC PN 1/94. Engage licensed waste collectors, disposal record of signed and chopped trip tickets
incorporate trip ticket system
13 Recycled aggregates shall be used when appropriate Waste management Area Managers All construction sites Construction stage In accordance with designer/ Engineer’s
Investigate use of recycled aggregates for use in temporary and permanent recommendations
works, eg, lower grade concrete
14 Adopt ‘selective demolition’ technique to demolish the existing structures and facilities with a view to recovering broken concrete effectively for recycling purpose, when practicable Waste management Area Managers All construction sites Construction stage Maximize broken concrete for recycling purpose
Carefully plan the demolition sequence during the planning phase

© Leighton Contractors (Asia) Limited, 2005 Page 52 of 73 H2104 WMP; Revision 2; 03.04.06. Permanent Aviation Fuel Facility Waste Management Plan

Environmental Control Plan LEIGHTON
Contract Name: Permanent Aviation Fuel Facility Plan No. ECP 5
Environmental Aspect: Waste and Chemical Management Contract No: H2104
Item Required Mitigation Measures and Operational Controls Objectives of Measures (concerns to address) Action by Location and Activity Frequency or Duration Performance Standard to be Achieved
15 Implement a trip-ticket system to ensure that the disposal of construction and Prevention of uncontrolled waste Area Managers / Project All construction sites Construction stage In accordance with Waste Management
demolition material is properly documented and verified disposal (Legal compliance) Environmental Coordinator Plan
16 Implement an enhanced Waste Management Plan similar to ETWB TC(W) 19/2005 – “Enviromental Management on Construction Sites” to encourage on-sitting sorting of construction and demolition material and Waste management (Effective environmental management system) Area Managers / Project Environmental Coordinator All construction sites Construction stage Content in accordance with requirements set out in Section 3.6 of the Environmental Permit EP-
to minimize its generation during the course of construction 139/2002/A
Establish a Waste Management Plan at Contract start and have it reviewed
periodically throughout the duration of Contract

© Leighton Contractors (Asia) Limited, 2005 Page 53 of 73 H2104 WMP; Revision 2; 03.04.06. Permanent Aviation Fuel Facility Waste Management Plan

Environmental Control Plan LEIGHTON
Contract Name: Permanent Aviation Fuel Facility Plan No. ECP 5
Environmental Aspect: Waste and Chemical Management Contract No: H2104
Item Required Mitigation Measures and Operational Controls Objectives of Measures (concerns to address) Action by Location and Activity Frequency or Duration Performance Standard to be Achieved
17 Avoid disposal of construction and demolition material onto any sensitive locations (eg, agricultural lands). Leighton Contractors (Asia) Limited shall propose the final disposal sites to the FSR and get his approval before implementation Prevention of uncontrolled waste disposal (Legal compliance) Area Managers / Project Environmental Coordinator All construction sites Construction stage In accordance with Waste Management Plan, record of signed and chopped trip tickets
Define waste disposal locations in the Waste Management Plan. Engage licensed waste collectors, incorporate-trip ticket system
Chemical Waste
1 Chemical waste that is produced, as defined by Schedule 1 of the Waste Disposal (Chemical Waste) (General) Regulation, shall be handled in accordance with the Code of Practice on Prevention of uncontrolled waste disposal (Legal compliance) Area Managers Chemical waste storage area Construction stage Comply with the Code of Practice on packaging, labelling and storage of chemical waste
the Packaging, Labelling and Storage of Chemical Wastes
Establish chemical waste storage facility(s) on the site at Contract start in accordance with regulations

© Leighton Contractors (Asia) Limited, 2005 Page 54 of 73 H2104 WMP; Revision 2; 03.04.06. Permanent Aviation Fuel Facility Waste Management Plan

Environmental Control Plan LEIGHTON
Contract Name: Permanent Aviation Fuel Facility Plan No. ECP 5
Environmental Aspect: Waste and Chemical Management Contract No: H2104
Item Required Mitigation Measures and Operational Controls Objectives of Measures (concerns to address) Action by Location and Activity Frequency or Duration Performance Standard to be Achieved
2 Containers used for the storage of chemical wastes shall be suitable for the substance they are holding, resistant to corrosion, maintained in a good condition, and securely closed; have a capacity of less than 450 unless the specification has been approved by the Environmental Protection Department; and display a label in English and traditional Chinese characters in Waste management (Legal compliance) Area Managers Chemical waste storage area Construction stage Comply with the Code of Practice on packaging, labelling and storage of chemical waste, checked during routine environmental inspection
accordance with instructions prescribed in Schedule 2 of the regulation
Incorporate items on routine environmental checklist to check
chemical-waste containers are available,
in use, labelled and suitably stored

© Leighton Contractors (Asia) Limited, 2005 Page 55 of 73 H2104 WMP; Revision 2; 03.04.06. Permanent Aviation Fuel Facility Waste Management Plan

Environmental Control Plan LEIGHTON
Contract Name: Permanent Aviation Fuel Facility Plan No. ECP 5
Environmental Aspect: Waste and Chemical Management Contract No: H2104
Item Required Mitigation Measures and Operational Controls Objectives of Measures (concerns to address) Action by Location and Activity Frequency or Duration Performance Standard to be Achieved
3 The storage area for chemical waste shall be clearly labelled and used solely for the storage of chemical waste; enclosed on at least three sides; have an impermeable floor and bunding of sufficient capacity to accommodate 110% of the volume of the largest container or 20% of the total volume of Waste management (Legal compliance) Area Managers Chemical waste storage area Construction stage Comply with the Code of Practice on packaging, labelling and storage of chemical waste, checked during routine environmental
waste stored in that area, whichever is the greatest; have adequate ventilation; covered to prevent rainfall entering; and arranged so that incompatible material is adequately separated inspection, site layout plan up-to-date and posted on notice board.
Label storage areas on the site-layout plan, incorporate items on routine environmental checklist to check
chemical waste storage area is available, in use and maintained in good condition

© Leighton Contractors (Asia) Limited, 2005 Page 56 of 73 H2104 WMP; Revision 2; 03.04.06. Permanent Aviation Fuel Facility Waste Management Plan

Environmental Control Plan LEIGHTON
Contract Name: Permanent Aviation Fuel Facility Plan No. ECP 5
Environmental Aspect: Waste and Chemical Management Contract No: H2104
Item Required Mitigation Measures and Operational Controls Objectives of Measures (concerns to address) Action by Location and Activity Frequency or Duration Performance Standard to be Achieved
4 Disposal of chemical waste shall be via a licensed waste collector; be to a facility licensed to receive chemical waste, such as the Chemical Waste Treatment Centre which also offers a chemical-waste Prevention of uncontrolled waste disposal (Legal compliance) Area Managers Chemical waste storage area Construction stage Record of signed and chopped trip tickets
collection service and can supply the necessary storage containers; or be to an approved re-user of the waste, under approval from the Environmental Protection Department
Engage licensed waste collectors, incorporate trip-ticket system
Sewage
1 Adequate numbers of portable toilets shall be provided for the workers. The portable toilets shall be maintained in a state that will not deter workers from Waste management (Legal compliance, complaints) Area Managers All construction sites Construction stage Chemical toilets provided by licensed contractor, maintained in
using them. Night soil shall be collected by licensed collectors regularly accordance with maintenance schedule
Install and utilize chemical toilets at
locations where regular toilets are not accessible to the workforce, number to
suite number of workers and stage of construction, establish maintenance
schedule.

© Leighton Contractors (Asia) Limited, 2005 Page 57 of 73 H2104 WMP; Revision 2; 03.04.06. Permanent Aviation Fuel Facility Waste Management Plan

Environmental Control Plan LEIGHTON
Contract Name: Permanent Aviation Fuel Facility Plan No. ECP 5
Environmental Aspect: Waste and Chemical Management Contract No: H2104
Item Required Mitigation Measures and Operational Controls Objectives of Measures (concerns to address) Action by Location and Activity Frequency or Duration Performance Standard to be Achieved
General Refuse
1 General refuse generated on-site shall be stored in enclosed bins or compaction units separately from construction and chemical waste Establish separate waste skips for collecting general refuse on-site, label locations on the site-layout plan Waste management (Legal compliance, complaints) Area Managers All construction sites Construction stage In accordance with the site-layout plan; site-layout plan up-to-date and posted on notice board, located away from construction and chemical waste
2 A reputable waste collector shall be employed by Leighton Contractors (Asia) Limited to remove general refuse from the site, separately from construction and chemical waste, on a daily basis to minimize odour, pest and litter impacts Establish waste collection schedule, only engage reputable waste collectors Waste management (Legal compliance, complaints) Area Managers All construction sites Construction stage No over loaded waste skips, maintained in accordance with maintenance schedule
3 Prohibit open burning of refuse on-site Include this requirement in site induction training material and tool-box meetings Waste management (Legal and contract compliance and air pollution) Area Managers All construction sites Construction stage No open burning on-site throughout the Contract duration.

© Leighton Contractors (Asia) Limited, 2005 Page 58 of 73 H2104 WMP; Revision 2; 03.04.06. Permanent Aviation Fuel Facility Waste Management Plan

Environmental Control Plan LEIGHTON
Contract Name: Permanent Aviation Fuel Facility Plan No. ECP 5
Environmental Aspect: Waste and Chemical Management Contract No: H2104
Item Required Mitigation Measures and Operational Controls Objectives of Measures (concerns to address) Action by Location and Activity Frequency or Duration Performance Standard to be Achieved
4 Recover aluminium cans from the waste Waste management Area Managers All construction Construction stage Site-layout plan up
stream. Provide separate labelled bins for their deposit if feasible Establish recycling bins on-site, label locations on the site-layout plan, engage (Improve worker awareness and visual impact) sites to-date and posted on notice board, improved awareness of workforce
reputable recyclers for collection.
Include this requirement in site induction
training material and tool-box meetings
5 Office waste can be reduced through the recycling of paper if volumes are large enough to warrant collection. Leighton Contractors (Asia) Limited should consider participation in a local collection scheme. In addition, waste Waste management (Improve worker awareness and visual impact) Area Managers All construction sites Construction stage Site-layout plan up-to-date and posted on notice board, improved awareness of workforce
separation facilities for paper, aluminium cans and plastic bottles should be provided.
Establish separate recycling bins for paper, plastic and cans on site, label locations on the site-layout plan, engage reputable recyclers for collection. Include this requirement in site induction training material and tool-box meetings

© Leighton Contractors (Asia) Limited, 2005 Page 59 of 73 H2104 WMP; Revision 2; 03.04.06. Permanent Aviation Fuel Facility Waste Management Plan

Environmental Control Plan LEIGHTON
Contract Name: Permanent Aviation Fuel Facility Plan No. ECP 5
Environmental Aspect: Waste and Chemical Management Contract No: H2104
Item Required Mitigation Measures and Operational Controls Objectives of Measures (concerns to address) Action by Location and Activity Frequency or Duration Performance Standard to be Achieved
6 Provide training to workers about the concepts of site cleanliness and Waste management, health and hygiene Project Environmental All construction sites Construction stage In accordance with training schedule,
appropriate waste management procedure, including reduction, re-use and recycling of waste Establish training schedule (Improve worker awareness and visual impact) Coordinator / Safety Officer improved awareness of workers, 100% workers trained

© Leighton Contractors (Asia) Limited, 2005 Page 60 of 73 H2104 WMP; Revision 2; 03.04.06.

Appendix B Waste Flow Table

© Leighton Contractors (Asia) Limited, 2005 Page 61 of 73 H2104 – WMP; Revision 2; 03.04.06. Permanent Aviation Fuel Facility Waste Management Plan

Waste Flow Table for Environmental Objective 5 Year: 2006

Contract Title: Contract No:

Form No: F564

Permanent Aviation Fuel Facility H2104

Rev. No: 1

Date: 24.03.05

Actual Quantities of Inert Construction Waste

Actual Quantities of Construction Waste Recycled1

Actual Quantities of Disposed Material

Reused/Recycled

Inert

Broken

Chemical Waste6 to

Re-used in

Cardboard

Month

Re-used in

Metals

Paper

Plastic4

Construction

Construction

Concrete2

Licensed Facilities

Other

Packaging Timber

Others5

Project

Recycled

Recycled

Recycled

Waste7 to Public

Waste to Landfill

Recycled

Projects3

Recycled

Fill

Liquid

Solid (tonnes) (tonnes)

(tonnes)

(kg)

(kg)

(kg)

(kg)

(Kg)

(kg)

(litres)

(kg)

(tonnes)

(tonnes)

Jan

0

0

0

0

0

0

0

0

0

0

0

0

5.75 Feb Mar Q1 total

0

0

0

0

0

0

0

0

0

0

0

0

5.75 Apr May Jun Q2 total

0

0

0

0

0

0

0

0

0

0

0

0

0 Jul Aug Sep Q3 total

0

0

0

0

0

0

0

0

0

0

0

0

0 Oct Nov Dec Q4 total

0

0

0

0

0

0

0

0

0

0

0

0

0

Grand total

0

0

0

0

0

0

0

0

0

0

0

0

5.75

Note / Definition:

  1. Provide further breakdown in Part D2 of Monthly Environmental Report.
  2. Broken concrete for recycling into aggregates (eg Tuen Mun Area 38).
  3. Other projects include third-parties (eg quarries).
  4. Plastic refers to plastic bottles/containers, plastic sheets/foam from packaging material.
  5. Examples of other waste recycled may include tyres and computer equipment
  1. Chemical waste is split into 2 components: liquid waste (eg spent lubricating oil) and solid waste (eg spent batteries). Provide further breakdown in Part D1 of Monthly Environmental Report.
  2. Inert construction waste is also known as public fill. It includes, for example, concrete, rubble, earth, boulder, sand, tile, masonry and used bentonite.

© Leighton Contractors (Asia) Limited, 2005 Page 62 of 73 H2104 – WMP; Revision 2; 03.04.06.

Appendix C Waste Management Weekly Monitoring Checklist Appendix D

Waste Monitoring Weekly Inspection Checklist LEIGHTON
Form No:
Rev. No:
Date:
Contract Name: Contract No:
WMP Inspection No: Date:
Area Inspected:
Weather Conditions During Site Inspection: Fine Cloudy Rainy Others:___________________________________________
Item Mitigation Measure Implemented Remarks/CAR
Yes No N/A
1 General Housekeeping
1.1 Is the site kept clean and tidy?
1.2 Has equipment been properly stored when not in use?
1.3 Has material been properly stored?
2 General Waste
2.1 Are the worksites free from general waste?
2.2 Are wastes securely stored?
2.3 Are there central collection points for general litter?
2.4 Are wastes regularly removed?
2.5 Is waste suitably segregated?
2.6 Is construction/demolition waste recycled?
2.7 Are waste haulers appropriately authorized or licensed to collect the specific category of waste?
2.8 Is recycling of office wastes promoted and used?
2.9 Is packing material being sorted and recycled?
2.10 Are waste workflow tables being updated accurately and timely?
Waste Monitoring Weekly Inspection Checklist LEIGHTON
Form No:
Rev. No:
Date:
Contract Name: Contract No:
WMP Inspection No: Date:
Item Mitigation Measure Implemented Remarks/CAR
Yes No N/A
2.11 Is the trip ticket system being effectively implemented?
3 Chemical Waste and Storage
3.1 Are chemicals and chemical wastes properly stored in accordance with the statutory requirements (ie, on a hardstanding, within a bunded, enclosed and locked area)?
3.2 Is chemical waste properly stored in corrosion-resistant containers, which are maintained in a good condition and securely closed?
3.3 Is chemical waste properly labelled in English and traditional Chinese characters?
3.4 Is chemical waste disposed of by a licensed chemical-waste contractor?
3.5 Are appropriate safety measures in place (sand buckets, fire extinguishers, etc)?
4 Documentation
4.1 Are the following licences/permits available and up-to-date? Environmental Permit Chemical Waste Producer Licence Dangerous Goods License Trip tickets for chemical waste Waste hauler and waste collector licences Trip tickets for C&D waste Dumping license
4.2 Has WMP been reviewed and updated, where necessary (monthly/quarterly)?
Summary Table:
Prepared by: Date:
Checked by: Date:

Summary Table for Work Processes or Activities Requiring Timber in Temporary Works

Permanent Aviation Fuel Facility Waste Management Plan

Work Processes or Activities Requiring Timber for Temporary Works PAFF
Contract Name: Permanent Aviation Fuel Facility Name of Department: Contract No: H2104 Form No: H2104/F504
Rev. No: 0
Date: 2006-01-05
Item Description of Works Process or Activity [see note (a) below] Justifications for Using Timber in Temporary Construction Works Estimated Quantities (m3) Actual Quantities used (m3) Remarks
1
2
3
4
5
6
7
8
9
Total Estimated Quantity of Timber Used (m3)

Notes: a) Works items requiring timber for use in temporary construction works. Several minor work items can be combined for ease of updating. b) The summary table shall be submitted monthly to the FSR for review and monitoring.

© Leighton Contractors (Asia) Limited, 2005 Page 67 of 73 H2104 – WMP; Revision 2; 03.04.06.

Appendix E Environmental Emergency Procedures

Environmental Emergency Procedures

Purpose

The purpose of the procedure is to describe the environmental emergency preparedness and response procedure for this site. Note that the Leighton Safety Management System addresses emergency procedures related to site safety eg, accidents and personal injury.

Scope

The procedure shall apply to emergency situations that impact on the environment such as spillage, rainfall.

Terminology

Nil

References

Site Safety Plan Corrective and Preventive Action Control Procedure (QMP 14.1)

Actions

General

The potential for an environmental emergency exists at this site due to the large number of different construction activities being carried out and the materials, plant and equipment being used. Additionally, natural events may create an environmental emergency situation that must be appropriately managed. These potential emergencies are addressed in this section as events which would trigger the implementation of environmental emergency preparedness and response procedures.

The following are types of potential environmental emergency that could arise at the site.

Fire

-
May cause the release of dust and toxic fumes
-
May produce contaminated run-off from water and chemical suppressants

Spill and Material Release

-
May cause surface water or marine water contamination via drains and channels
-
May result in release of flammable liquids and vapours capable of causing a fire and gas explosion hazard
-
May cause release of toxic fumes and liquids
-
May result in contamination of equipment and storage vessels.

Accident

-
May cause fire, explosion and spill
-
May result in the mixing of incompatible chemicals
-
May cause surface water or marine water contamination through the release of hazardous materials
-
May cause release of fumes or vapours into the atmosphere.

Natural Event

- Heavy rains that may result in flooding of channels and waterways

- Typhoons accompanied by high winds and heavy rain

- High winds may result in dust and flying debris

- Earthquakes.

Emergency Contacts

Emergency contacts and telephone lists are located on the safety notice boards located throughout the site. Telephone numbers and contact person lists are updated when necessary but will normally contain at least:

- Ambulance

- Hong Kong Police Force

- Fire Service Department

- Hospital

Spill containment and response

General requirements The main objective of spill containment is to minimize uncontrolled releases thus preventing soil and surface water contamination and protecting adjacent groundwater and marine water environments. The hierarchy of priorities when a spill occurs is:

- assess the situation and the likelihood of resulting injuries;

- stop further spillage if possible by shutting down pumps and valves;

- use radio to dispatch appropriate site equipment and personnel to the spill location for containment, control and cleanup;

- contain spilled material and cleanup

- document incident using corrective action request form, distribute and file;

- follow up with site training where appropriate;

- the area managers, project environmental coordinator or safety officer on duty will assess the situation, call the appropriate authorities if necessary and document the spill and cleanup.

Hazardous materials

The following hazardous materials are stored and handled on the site:

Location Material Storage Method
On-site Diesel fuel Liquid petroleum gas Cleaning solvents Engine oil Hydraulic oil Waste oil Above ground storage tanks Gas cylinders Tin cans Steel drums Steel drums Steel drums
Location Material Storage Method
Stores Miscellaneous chemicals such as Generally tin cans or plastic containers
DG Store Liquid petroleum gas Acetylene Gas cylinders Gas cylinders

Spill containment kit

The following list of typical items to be included in the spill containment kit (exact content to suit site requirements):

- UV resistant wheelie bin (220L) (To contain absorbed material for disposal)

-
2 50kg bag fibre containing 150L of compressed product (absorbent capable to absorb 130L per bag)
-
2 booms (100mm diameter in 1.2m and 3m lengths) (absorbent capable to absorb 14L/m of boom)
-
2 booms (150mm diameter in 1.2m and 3m lengths) (absorbent capable to absorb 31L/m of boom)

- 3 absorbent pillows (400mmx75mm) (absorbent capable to absorb 21L per pillow)

- broom

- spark proof shovel

- brush and pan set

- mask with filter

- goggles

- gloves

Liquid spills

Liquid spills are most likely in areas where plant and equipment is refueled or maintained, i.e. at the on-site storage tank.

Spillage of Oils

All permanent stores of oils and fuels are to be contained in a bunded area, thus reducing the risk of spills reaching water course or contaminated land. If a spill does occur, the spill will be dyked using booms or sandbags, sand or soil to contain the spill and to prevent it from entering the drainage system. Absorbent pillows, soil or sand is used to absorb the bulk of the spill. Contaminated material shall be stored temporarily in the Chemical Waste Store pending disposal off-site. Disposal of the resulting waste should be to an authorized disposal site via a chemical waste collector. The disposal site for solid chemical waste is usually the active area of a landfill (on application to the landfill operator) or to a chemical waste treatment facility. Spills involving flammable liquids shall be treated with extreme caution to minimise risk of injury and damage. Note that water should only be used to minimise fire damage and protect personnel. Excessive use of water can cause flammable liquids to spread over an extensive area.

Spills at the on-site storage tank

The on-site storage tank is to be kept in a bundled area to minimise risk of uncontrolled spillage. If a spill does occur, the spill is dyked using booms, sandbags, sand or soil to prevent it from entering the drainage system. Absorbent pillows, soil or sand is used to absorb the bulk of the spill. Disposal of the resulting waste should be to an authorized disposal site via a chemical waste collector. The disposal site for solid chemical waste is usually the active area of a landfill (on application to the landfill operator) or to a chemical waste treatment facility.

Solid spills

Solid spills are generally associated with material delivery, movement or waste disposal. These spills are usually the result of accidents or improper packaging of the materials involved and is generally cleaned up by the appropriate subcontractor. In the event of the subcontractor or carrier is unable to clear the spillage, e.g. due to injury, the spillage should be cleared taking all necessary precautions dependent on the nature of the material involved.

Training Drill For Spill Incident

A practice drill for a spill incident shall be carried out as early as practicable during the contract to confirm that procedures are operating satisfactory. The drill should involve all relevant key staff as detailed in this procedure.

Injury Treatment

During the course of an environmental accident or emergency, injuries should be dealt with in accordance with the procedures given on the safety notice boards and documented in the safety plan.

Procedure in case of fire

Note that no burning of waste is allowed on this site. In the case of a fire on the site, follow the procedures given on the safety notice boards and documented in the safety plan. Follow the relevant emergency services' instructions and directions regarding site evacuation and clean up methods.

Precautions and actions relating to rainstorms

Precautions are to be taken at any time of year when rainstorms are likely:

- silt removal facilities, channels and manholes should be maintained and the deposited silt and grit should be removed regularly;

- temporarily exposed slope surfaces should be covered, eg by tarpaulin;

- temporary access roads should be protected by hard paved or protected with crushed stone or gravel;

- intercepting channels should be provided (eg along the crest/edge of the excavation) to prevent storm runoff from washing across exposed soil surfaces;

- trenches should be dug and backfilled in short sections. Measures should be taken to minimise the ingress of rainwater into trenches.

Actions to be taken when a rainstorm is imminent or forecast

- Silt removal facilities, channels and manholes should be checked to ensure that they can function properly;

- open stockpiles of construction materials (eg aggregates, sand and fill materials) on site should be covered with tarpaulin of similar fabric;

- all temporary covers to slopes and stockpiles should be secured.

Actions to be taken after rainstorms

- Silt removal facilities, channels and manholes should be checked and maintained to ensure that they are working satisfactorily.

Post-emergency Procedures

Post-emergency procedures are designed to prevent recurrence, to cleanup and dispose of residuals, and to debrief personnel.

Prevent recurrence

The safety officer on duty shall take all necessary steps to ensure that a secondary release, fire, or explosion does not re-occur after the initial incident. Procedures carried out include:

-
inspection and monitoring of any equipment involved in the incident;
-
inspection of gas generation;

- isolation of collected waste materials.

All operations that are initially shut down during response to an incident are not reactivated until the project director or safety officer has given the signal to proceed.

Treatment and disposal of residual material

Once the emergency situation has ended the project director, safety officer or project environmental coordinator on duty initiates the cleanup and disposal of any residues. This shall take place as soon as practicable to avoid further contamination or incident recurrences. Liquid spills occurring within a containment area or sump are analyzed, treated and pumped or drained for appropriate disposal. Spilled liquids are cleaned up with absorbent pads or dry soil or sand and are disposed as Chemical Waste.

Personnel debriefing

The safety officer or project environmental coordinator conducts meetings with site supervisory staff and subcontractors to review preparedness, prevention and response activities. Based on this review, suggestions for revisions to the existing emergency and work practices are made to the project director and adopted if appropriate.

Incident, accident and injury reporting

Statutory accident, injury and incident reporting is carried out by the safety officer in accordance with legislation requirements and the requirements of the LCAL safety management system. The Project Environmental Coordinator shall record spills and environmental incidents not covered by the safety management system using the corrective or preventive action procedure QMP 14.1.